Yatırımlık Fırsat Gayrimenkulleri Kaçırmayın!
tapucom svg logo

tapucom svg logo

İstanbul Beyoğlu'nda Restorasyon Projeli Müstakil Tarihi Eser Bina

Sahibinden 9 418m2

Özellikler

Tapu no:
569
Satıcı:
Sahibinden
Oda Sayısı:
9
Metre Kare:
418m2
Ada:
479
Parsel:
19
Tapu Tipi:
Arsa Tapusu
Isıtma Sistemi:
Kombili
Bina Yaşı:
50
Binadaki Toplam Kat Sayısı:
4

Ödeme Detayları

KDV:
% 0
İlgilendiğiniz bu tapuyla ilgili tüm sorularınız için sizi arayalım.
Dilerseniz 0 212 963 06 43 numaralı telefondan da bize ulaşabilirsiniz

Adres

Açıklama

Açık adres : İstanbulu İli, Beyoğlu İlçesi, Kuloğlu mahallesi, Ayhan ışık Sokak,  No: 20 Beyoğlu /  istanbul

Ulaşım :

Ayhan Işık sokak Taksim Meydanı'nı Tünel'e bağlayan eskiden Cadde-i Kebir olarak da bilinen İstiklal caddesi'ne direk bağlıdır.  Ayhan Işık sokak işlek olmasını konumu itibariyle Sıraselviler caddesini İstiklal caddesine bağlamasına borçludur. Demirören avm bitiminin karşı sokağından başlayan sokağa girildiğinde bina yaklaşık 80 m. ileride sağda yeralmaktadır.

Gayrimenkulün yer aldığı Beyoğlu, İstanbul'un ticaret, turizm ve eğlence merkezlerinden biridir. Bölge sosyo ekonomik olarak orta gelir grubunun ikamet ettiği bir yerde olup, bölgede konut fonksiyonu düşük yoğunlukludur. İstiklal Caddesi'nde Tünel-Taksim arasında çalışan Nostaljik Tramvay ile Taksim Meydan'ına Taksim-4'üncü Levent Metrosu ile de yoğun araç trafiğinin dışında kalarak Şişli, Levent gibi alış veriş merkezlerinin yoğun olduğu bölgelere ulaşmak mümkün olabilmektedir.

Beyoğlu : Beyoğlu İlçesi, İstanbul'un Avrupa yakasında yer almakta olup kuzeyinde; Şişli, Beşiktaş ve Kağıthane İlçeleri ile diğer yönlerde ise Haliç ve Boğaziçi ile çevrilidir. Köy Yerleşimi olmayan İlçe 45 mahalleden oluşmakta olup, 8,76 km2 yüzölçümüne sahiptir.

İş, eğlence ve kültür merkezi olması nedeniyle bu ilçe sınırları içeresindeki gündüz ve gece nüfusu birkaç milyonu bulmaktadır. Bazılarına göre Beyoğlu, Karaköy'den Taksim'e kadar uzanan bölgedir. Bugün İstanbul İline bağlı Beyoğlu İlçesi; Haliç'in kuzeyinde Kasımpaşa vadisinin batısıyla, Dolmabahçe (Gazhane) vadisi arasında kalan alanı kapsamaktadır. Ancak halk arasında Beyoğlu adı, kentin önemli kültür, eğlence ve iş merkezlerinden olan ve Galatasaray'ı Taksim Meydanı'na bağlayan İstiklal caddesi ve çevresi için kullanılmaktadır. İstanbul İli deprem haritasına göre Beyoğlu İlçesi 2'nci derece deprem Bölgesinde kalmaktadır.

BİNA DETAYLARI :

En son Borusan Kültür Sanat bünyesindeki etkinliklere ev sahipliği yapmış bina sokakta geniş bir cepheye sahiptir. 2. grup korunması gerekli kültür varlığı tescilli bina imar planında THT olarak gözükmektedir. Binanın kullanım açısından herhangi bir kısıtlayıcı engeli bulunmamaktadır.  Gayrimenkulün tapuda cins tashihinin ''Kargir Ev'' olarak yapılmış olması ve 2.Grup Korunmalı Gerekli Kültür Varlığı tescili nedeni ile yapı yasal kabul edilmiştir.

Yapı Denetim Kuruluşları ve Denetimleri : Bina konu parsel üzerinde yer alan ve 2863 sayılı Kültür Ve Tabiat Varlıklarını Koruma Kanunu Kapsamında tescil edilen taşınmaz kültür varlıklar için , 13.07.2001 tarihli Resmi Gazetede yayınlanan 4708 sayılı Yapı Denetim Hakkında Kanun hükümleri uygulanmaktadır.

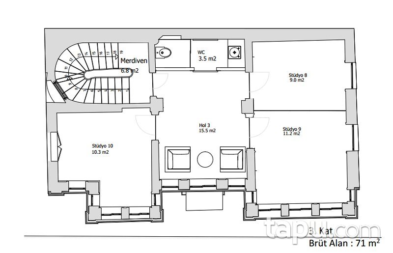
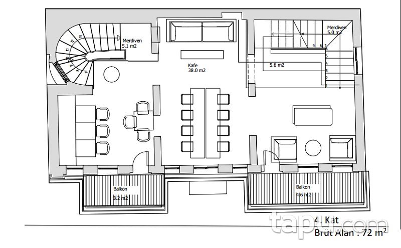
Binanın yapısal özellikleri ; 1 bodrum + zemin+ 4 normal kattan oluşmaktadır.

Bodrum  kat, 1 adet oda, kalorifer dairesi, duş-wc ve güvenlik odası mahallerinden oluşmaktadr. Katın, yer döşemeleri renkli karo çini, duvarları plastik boyalıdır. Kat tek cepheden ışık almaktadır. 

Zemin kat ve 4 normal katın, yer döşemeleri cilalı ahşap parke duvarları  plastik boyalıdır. Kapı doğramaları yağlı boyalı ahşaptır. pencere doğramaları ısı camlı cilalı ahşaptır.

Bina giriş kapısı çift kanatlı demirdir.

Elektirik, jeneratör, kalorifer, su, yangın algılama sistemi, kapalı devre TV güvenlik sistemi ve her katta kliması mevcuttur. 

Bodrum (65 m2), Zemin (65 m2), 4 normal kat (72 m2) + terastan oluşan bitişik nizam bina 418 m2 kapalı alanlıdır.

Binada asansör eklenecek bir yer mevcuttur. Normal katlarda biri büyük biri küçük iki oda bulunmaktadır.

Çatı katı deniz ve eski İstanbul manzaralıdır. 

479 ada, 19 parsel numaralı gayrimenkul ; 1/1000 ölçekli, 21.12.2010 tasdik tarihli, Beyoğlu Kentsel  Sit Alanı Koruma Amaçlı Uygulama İmar Planı'nda '' Turizm + Hizmet + Ticaret Alanı'nda kalmaktadır.

Restorasyonu yüksek bir işçilikle tamamlanmış olan bina boş teslim edilmektedir ve "hava parası" yoktur. Bölgedeki diğer satılık alternatiflere nazaran uygun fiyatlı olan bina kaliteli ve sorunsuz bir yapıdır. Turizm, hizmet ve ticaret amaçlı kullanım izinleri alınabilinmektedir. Dilenirse binaya asansör eklenebilir. Binanın lokasyonu tartışmasız çok merkezidir. Bölgedeki gayrimenkul değerleri son 50 yıl boyunca sürekli artmıştır. Tüm bu nedenlerden dolayı bu bina isabetli bir yatırım fırsatıdır.

Konum

Denize Sıfır
Deniz Ulaşımına Yakın
Toplu Ulaşıma Yakın
Yola Cepheli
Köy Merkezine Yakın
Cadde Cepheli
Metroya Yakın
Caddeye Yakın
Hastaneye Yakın
Ulaşımı Kolay
Merkezi Konumlu
Sosyal Alanlara Yakın
Ticari Alanlara Yakın
Alışveriş Merkezine Yakın
Üniversiteye Yakın
Metrobüse Yakın
Tümünü Göster

Manzara

Deniz Manzaralı
Şehir Manzaralı
Doğa Manzaralı
Havuz Manzaralı
Orman Manzaralı
Göl Manzaralı
Boğaz Manzaralı

İç Özellikler

Ahşap Doğramalı
Beyaz Eşyalı
İnternet Televizyon Altyapısı
Klimalı
Mobilyalı
Vestiyerli
Asma Tavanlı
Teras Alanlı
Geniş Kullanımlı
Kombili Sistem
Merkezi Isıtmalı
Gömme Dolaplı
Ebeveyn Banyolu
Çelik Kapılı
Balkonlu
Amerikan Mutfak
Ankastre Mutfak
Çamaşır Odası
Duşakabin
Jakuzi
Kiler
Şömine
Tümünü Göster

Tapu.com'dan Konut Satın Alınırken Sık Sorulan Sorular

Gayrimenkulle ilgili merak ettiğiniz tüm sorular için uzman destek ekibimizle iletişime geçebilirsiniz. Sayfa içerisinde yer alan “Sizi Arayalım” formunu doldurduğunuz takdirde çağrı merkezimiz size en kısa sürede dönüş sağlar. Dilerseniz 0850 532 82 78 nolu telefonu arayarak ekibimizle görüşme gerçekleştirebilirsiniz.

Sitemize üye olarak ilgilendiğiniz tapuları favorinize ekleyebilirsiniz. Favorilere eklediğiniz tapular hakkında tüm haberler, değişiklikler ve açık artırma tarihlerinde oluşacak gelişmeler size SMS ve e-mail yoluyla iletilir.

İlgili mülkü ziyaret etmek için “Sizi Arayalım” formunu doldurmanız gerekmektedir. Çağrı merkezimiz size en kısa sürede dönüş sağlayarak uygun tarihler için randevunuzu oluşturur.

Üye girişi yaptıktan sonra ilgilendiğiniz gayrimenkulün sayfasında yer alan “Teklif Ver” ya da “Pazarlığa Başla” butonuna tıkladığınızda teklif verme sayfasına yönlendirilirsiniz. Bu sayfada teklifinizi girin, son olarak “Teklifi Gönder” butonuna tıklayın. Verdiğiniz teklif satıcı tarafından değerlendirilerek onaylanır ya da reddedilir. Satıcının dönüşü tarafınıza bildirilir.

Tapu.com ciddi alıcılar ile satıcıları bir araya getirmek amacıyla teklif verme sürecinde “Hizmet Bedeli” ödemesi talep eder. Ödeme ekranından kredi kartı, banka kartı bilgilerinizi girerek veya EFT ile hizmet bedelinizi ödeyerek teklifinizi verebilirsiniz.

Teklif verildikten sonra, teklif tapu.com üzerinden satıcıya iletilir. Satıcı işleme onay verdikten sonra tapu.com siz ve satıcı arasında iletişimi sağlayarak işlemlerin sonuçlanmasına yardımcı olur. Bu aşamada gereken evrakların ve varsa sözleşmelerin imzalanması gerekir. Bu evraklarla birlikte tapu dairesine gidilerek tapu devir işlemleri gerçekleştirilir. Devir sürecinin her adımında tapu.com yetkilisi size yardımcı olmak üzere hazır bulunur. Satıcı teklifinizi reddederse teklif sürecinde ödediğiniz hizmet bedeli tarafınıza aide edilir. Dilerseniz aide gerçekleşene dek yeniden teklif verebilirsiniz.

Teklifiniz onayladığı takdirde ödemeyi tapu devri sırasında direkt satıcıya ödersiniz. Tapu.com hizmet bedeli dışında herhangi bir ödeme sürecine dahil olmaz.

Teklifiniz onaylanmazsa veya açık artırmayı kazanamazsanız hizmet bedeliniz iade edilir. Verilen teklif onaylandıktan sonra satın almaktan vazgeçen katılımcıya hizmet bedeli iade edilmemektedir.

Tapu.com'da yayınlanan mülklerle ilgili tüm bilgiler ekspertiz raporuna dayanmaktadır. Ekspertiz raporu, gayrimenkulün gerçek değerini belirlemek için yetkili kişi ya da kurumlar aracılığıyla hazırlanan analizdir. Ekspertiz raporu sonucunda tapu kayıtlarıyla ilgili bilgileri (şerh, ipotek, haciz, vb.), iskan durumunu, bina yaşını, metrekaresini, konumunu ve evin piyasa değerini öğrenmek mümkündür.